華夏四季143㎡丨一座城,一個家,一份流淌在時間里的設計感

一座城,一個家
一處心安
客室閑坐,燈火可親
窗明幾凈,含韻萬千
炙手可熱的家裝風格,總是會在流行的一兩年收獲無數青睞,唯有現代風格,從誕生之初到現在,永遠穩坐年度前三的交椅。不是一切從簡,是在秉持現代風格的核心理念之后,符合現代人居住心理,讓家游走于舒適與時尚藝術之間。用藝術表達生活,用空間展示藝術。
案 例 分 享
項目信息: 昆明/華夏四季
AREA / 面積:143㎡
STYLE / 風格:現代風格
HOUSE TYPE / 類型:平層
DESIGN AGENCY /設計施工:幸福金芒果裝飾
DESIGNER / 設計師:楊建焜
本案屋主是幸福的三口之家,注重對生活品質的高要求及空間的收納,喜歡簡約又不失質感的生活節奏方式。
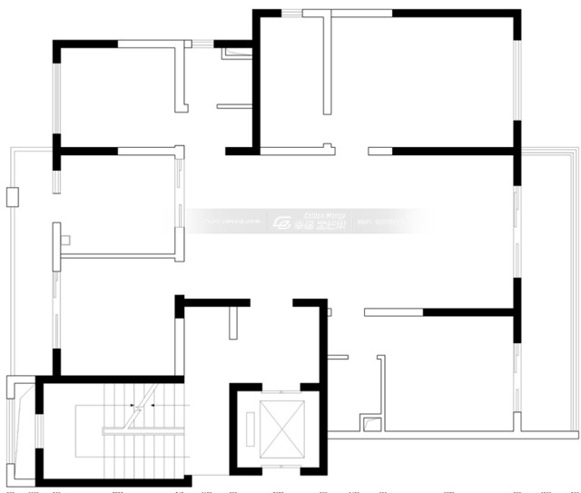
平面布置
改造前

改造后

? 設計開放式廚房,解決原戶型廚房偏小的問題,增加空間開闊感。
? 拆除衛生間原有南面、東面墻體,外擴衣帽間,增加存儲空間的同時衛生間更開闊。
? 入戶正對面設計玄關,增加美觀度。
? 將原本零碎的空間進行合理規劃,動線流暢,動靜分明。
客廳
頂天立地,溫文爾雅,多種氣質融合下,品質感成為家居生活的常態。讓家展現最舒適的狀態,如燥熱后的寂靜,奔波后的慵懶。

無主燈設計為空間減負,水泥灰藝術涂料搭配燈帶,溫暖優雅驟升。亞克力板茶幾鋪陳出通透、精致的藝術氣息,長虹玻璃若隱若現間在空間上演光影的角逐。

恰到好處的空間節奏感彰顯品質的沉淀,電視背景墻大面積的木,溫厚的質感,細膩的紋理,摩挲著便蔓延出無限的溫暖。玻璃磚讓空間藝術氛圍更上一層。

玄關,往往被理解為一個多功能儲物柜,但是作為一個家與外部的銜接空間,其本身的空間屬性就被賦予了多種意義。
餐廚區域
一抹綠意,直觸心底的歡喜,石材上斑駁的紋理,述說光陰的故事。

生活需要儀式感,可樂要加冰,生活要走心。三點一線的生活,所求不過是回家一頓美味的晚餐,一個高品質的餐廚空間,一套像樣的餐具,生活也更加稱心如意。

看過形形色色的人,感受過事物萬千,也許只有在家里,才能覓得片刻的寧靜。安安靜靜的享受舌尖味蕾的綻放,一個簡約沒有壓力的格調餐廳滿足你。


臥室

灰玻展現光影的藝術,將空間的藝術氛圍和精致感進一步提升。床頭背景做格柵處理,層次感更加豐富。優雅的灰色,醞釀出華麗的奢華感。隨處設計的小細節,滿足精致的心思,滿足儀式感的生活。

衛生間

木紋和石材的碰撞,溫潤知性遇上活潑張揚,衛生間也成為了絕美的一處景色。三式分離衛生間,干濕分離的同時再把洗漱區域單獨分離出來,家居品質在細節的不斷積累中變得出類拔萃。




